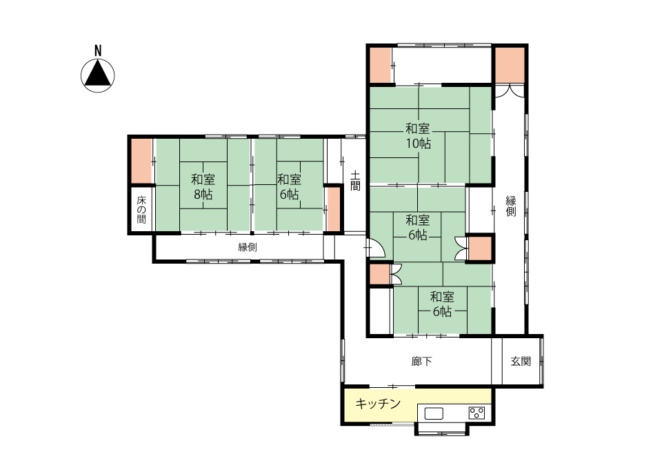
別途72㎡の農地は売主の費用負担で宅地となり、今回の売買対象となる予定です。建物内にはトイレ、お風呂、洗面所がありません。
水廻りを含めてリフォームが必須となります。
有明山を望み、北側には農園が広がっています
物件情報
| 価格 | 800万円 |
|---|---|
| 所在地 | 長野県安曇野市穂高有明7348番3 |
| 取引様態 | 一般媒介契約 |
| 引渡予定 | 相談 |
| 築年月 | 1982年10月 |
| 構造 | 木造(W造) |
| 土地面積 | 843.43㎡(公簿)/255.13坪 |
| 建物面積 | 128.29㎡/38.8坪 |
| 土地権利 | 所有権 |
| 汚水 | 個別浄化 |
信州の風土に調和する和風建築と古民家再生を手掛ける建設会社
別途72㎡の農地は売主の費用負担で宅地となり、今回の売買対象となる予定です。建物内にはトイレ、お風呂、洗面所がありません。
水廻りを含めてリフォームが必須となります。
| 価格 | 800万円 |
|---|---|
| 所在地 | 長野県安曇野市穂高有明7348番3 |
| 取引様態 | 一般媒介契約 |
| 引渡予定 | 相談 |
| 築年月 | 1982年10月 |
| 構造 | 木造(W造) |
| 土地面積 | 843.43㎡(公簿)/255.13坪 |
| 建物面積 | 128.29㎡/38.8坪 |
| 土地権利 | 所有権 |
| 汚水 | 個別浄化 |